Casa Calcit se deosebeste prin designul simplu, traditional, ce ofera sentimentul de “acasa”.
Este o casa unifamiliara, cu regim de inaltime P+1. Parterul este format din living cu bucatarie tip open space, ce confera o atmosfera prietenoasa datorita suprafetei si culorii lemnului folosit atat pentru mobilier cat si pentru elementele decorative. Tot la parter regasim si 1 dormitor, 1 baie, 1 debara si o camera tehnica.
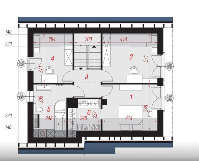
Etajul este compus din 3 dormitoare dintre care unul are dressing propriu, fiind un element foarte cautat in zilele noastre si 1 baie.

