Proiectul cuprinde o casa spatioasa, cu un design traditional, accesorizat cu lambriuri si deck din lemn termotratat, la care se adauga sarpanta care vine perfect in completarea designului.
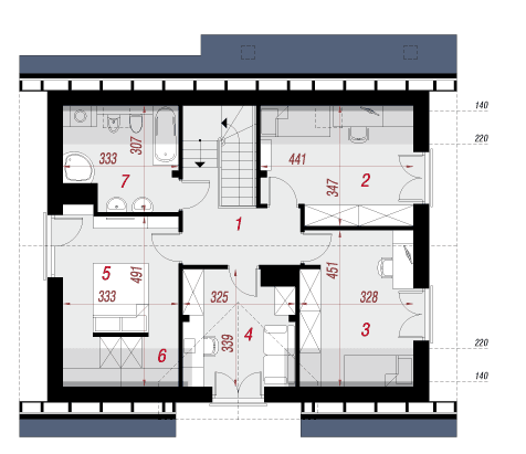
Parterul are o structura utila, datorita numeroaselor spatii de depozitare, cu un living luminos incorporat cu semineu modern ce da un aspect placut incaperii. Etajul la fel de bine impartit, este alcatuit din 3 dormitoare si numeroase spatii utile de depozitare, ce pot influenta alegerea dulapurilor.

